Ningbo Richge Technology Co., Ltd.
Ningbo Richge Technology Co., Ltd.
Produits
ZW7-40.5kV Haute tension 3 Pomes interrupteurs 35KV H.V. Disjoncteur à vide extérieur
  • ZW7-40.5kV Haute tension 3 Pomes interrupteurs 35KV H.V. Disjoncteur à vide extérieurZW7-40.5kV Haute tension 3 Pomes interrupteurs 35KV H.V. Disjoncteur à vide extérieur

ZW7-40.5kV Haute tension 3 Pomes interrupteurs 35KV H.V. Disjoncteur à vide extérieur

Model:ZW7-40.5
Le disjoncteur à vide à haute tension ZW7-40.5 en plein air adopte un poteau divisé conçu unique et un mécanisme de fonctionnement très fiable. L'appareil est principalement utilisé dans les réseaux d'alimentation de la ligne supérieure à tension moyenne pour diviser et combiner le courant de charge, le courant de surcharge et le courant de court-circuit.   ZW7-40.5 Disjonction de circuit de vide à vide à haute tension extérieur est en phase AC 50HZoutdor équipement électrique à haute tension TIS adapté à la commande et à la protection des systèmes de transmission d'alimentation et de distribution de 20 à 40,5 kV Contrôle de section et de redosage du système d'alimentation. Un transformateur de courant peut être ajouté pour la mesure et la protection. Le disjoncteur du cycle est équipé d'un actionneur à ressort ou électromagnétique, avec des performances mécaniques fiables et un fonctionnement fréquent; il n'y a pas de risque de feu et d'explosion

ZW7-40.5kV Haute tension 3 Pomes interrupteurs 35KV H.V. Disjoncteur à vide extérieur

ZW7-40.5 Disjoncteur à vide à vide moyenne à tension moyenne est un équipement électrique à haute tension en extérieur AC 50Hz en trois phases; Il convient au contrôle et à la protection des systèmes de transmission et de distribution d'alimentation de 20 à 40,5 kV; Il peut également être utilisé dans les occasions des disjoncteurs de section et des banques de condensateurs commutées; Ce produit peut être utilisé avec un contrôleur par morceau, le dispositif de recul peut réaliser la section intelligente et le contrôle de recul du système d'alimentation. Un transformateur de courant peut être ajouté pour la mesure et la protection. Le disjoncteur du cycle est équipé d'un actionneur à ressort ou électromagnétique, avec des performances mécaniques fiables et un fonctionnement fréquent; Il n'y a aucun risque de feu et d'explosion.


Les principales caractéristiques du disjoncteur sont d'excellentes performances de rupture, de l'arc sous vide, de la capacité de rupture élevée, de la durée de vie mécanique jusqu'à 10000 fois, de la structure simple, du cycle de maintenance sans maintenance et à long terme; Bonne performance d'isolation et forte capacité anti-pollution; Les transformateurs actuels peuvent être installés en fonction des exigences du client, avec une précision de mesure de niveau jusqu'à 0,2, permettant une interaction triphasée. Norme: CEI 62271-100


Détails du produit

● ZW7-40.5 Disjoncteur à vide à vide à tension moyenne extérieure est un équipement électrique haute tension en extérieur AC 50Hz en trois phases; Il convient au contrôle et à la protection des systèmes de transmission et de distribution d'alimentation de 20 à 40,5 kV; Il peut également être utilisé dans les occasions des disjoncteurs de section et des banques de condensateurs commutées; Ce produit peut être utilisé avec un contrôleur par morceau, le dispositif de recul peut réaliser la section intelligente et le contrôle de recul du système d'alimentation. Un transformateur de courant peut être ajouté pour la mesure et la protection. Le disjoncteur du cycle est équipé d'un actionneur à ressort ou électromagnétique, avec des performances mécaniques fiables et un fonctionnement fréquent; Il n'y a aucun risque de feu et d'explosion.

● Les principales caractéristiques du disjoncteur sont d'excellentes performances de rupture, l'arc sous vide, la capacité de rupture élevée, la durée de vie mécanique jusqu'à 10000 fois, la structure simple, le cycle de maintenance sans entretien et à long terme; Bonne performance d'isolation et forte capacité anti-pollution; Les transformateurs actuels peuvent être installés en fonction des exigences du client, avec une précision de mesure de niveau jusqu'à 0,2, permettant une interaction triphasée.

● Standard: CEI 62271-100.


Structure du disjoncteur

Le disjoncteur à vide à haute tension ZW7-40.5 est principalement composé de pôle intégré, de transformateur de courant, de mécanisme de fonctionnement et de boîte. Ce type de disjoncteur est de conception miniaturisée et la coque est en boîte en acier de haute qualité. Les transformateurs actuels peuvent être sélectionnés en fonction des besoins des utilisateurs. ZW7-40.5 Disjoncteur à vide à haute tension extérieure et combinaison de contrôle intelligente correspondant. L'opération d'ouverture et de clôture du commutateur peut être réalisée localement, et elle peut également être utilisée à distance via l'interface de communication. D'autres informations du disjoncteur peuvent également être transmises au centre de contrôle, et le canal de communication peut choisir le câble, la fibre optique, les GPR / CDMA, le GSM, etc.


Caractéristiques

1. Fiabilité extrêmement élevée

2. Complètement sans entretien tout au long de sa vie

3. A une vie mécanique et électrique élevée

4. Toute la machine est petite, de poids léger, facile à installer


Informations de base.





Paramètre technique





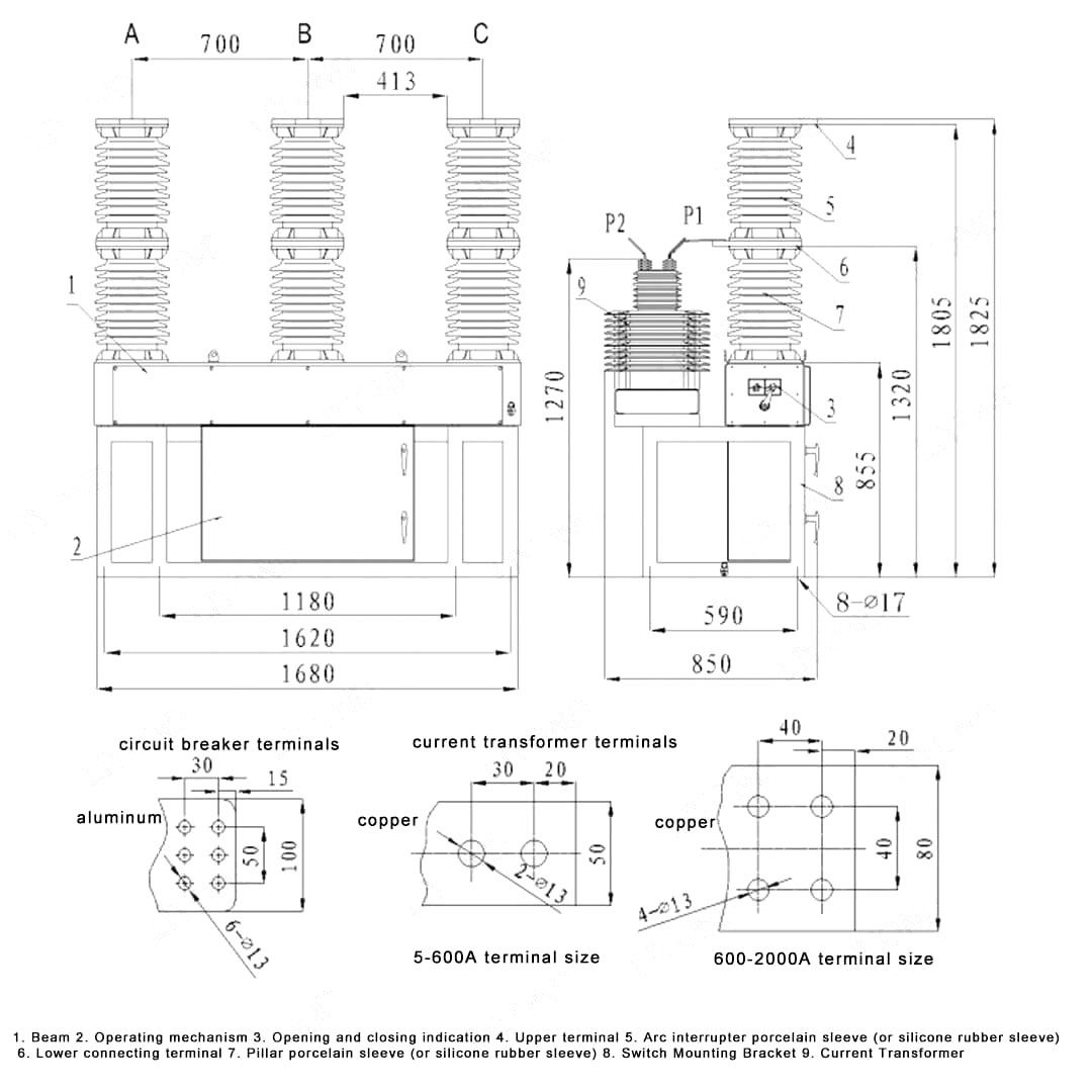
Dessin dimensionnel:




Conditions environnementales


1. température ambiante de l'air: -30ºC ~ + 60ºC;

2. Altitude: pas plus de 2000 mètres;

3. Pression du vent: pas plus de 700pa (correspondant à la vitesse du vent 34 m / s)

4. Vibration ou mouvement de terre à l'extérieur de l'équipement d'appareillage et de contrôle est négligeable;

5. Niveau de contamination: iv;

6. Tempéation de stockage -40ºC ~ + 85ºC.

7. Intensité du tremblement de terre: ne dépassez pas 8 degrés;




FAQ

Q1: Êtes-vous un fabricant ou un commerçant?

A1: Nous sommes un fabricant professionnel de premier plan.

Q2: Combien de temps dure votre cycle de livraison?

A2: Cela dépend des exigences et de la quantité de votre produit. Généralement, 5 à 10 jours ouvrables sont nécessaires pour la livraison

Q3: Quel est votre service après-vente?

A3: Nous pouvons répondre aux questions des utilisateurs résoudre leurs problèmes 24 heures sur 24 et fournir rapidement un support technique complet à tous nos produits.

Q4: Comment résolvez-vous des problèmes de qualité?

A4: Veuillez fournir des photos détaillées des problèmes de qualité. Nos services d'inspection technique et de qualité les analyseront. Nous donnerons une solution satisfaisante dans les 2 jours.

Q5: Acceptez-vous les services personnalisés?

A5: Nous fournissons des services OEM / ODM et pouvons imprimer votre logo sur les produits. Notre équipe technique professionnelle et de devis peut fournir des projets satisfaisants en fonction de vos dessins et paramètres.





Usine


Certificat




Balises actives: ZW7-40.5kV Haute tension 3 Pomes interrupteurs 35KV H.V. Disjoncteur de circuit à l'aspirateur extérieur, Chine, fabricant, fournisseur, usine, prix bas, qualité, dernière vente, avancé
envoyer une demande
Informations de contact
Pour toute demande concernant l'appareillage basse tension, les isolateurs haute tension, le sectionneur de terre haute tension ou la liste de prix, veuillez nous laisser votre e-mail et nous vous contacterons dans les 24 heures.
X
Nous utilisons des cookies pour vous offrir une meilleure expérience de navigation, analyser le trafic du site et personnaliser le contenu. En utilisant ce site, vous acceptez notre utilisation des cookies. politique de confidentialité
Rejeter Accepter